CASA MANAGUA

TYPOLOGY
Single-family residence

PROGRAM
Residence + services + parking

LOCATION
Managua, Nicaragua (2024)

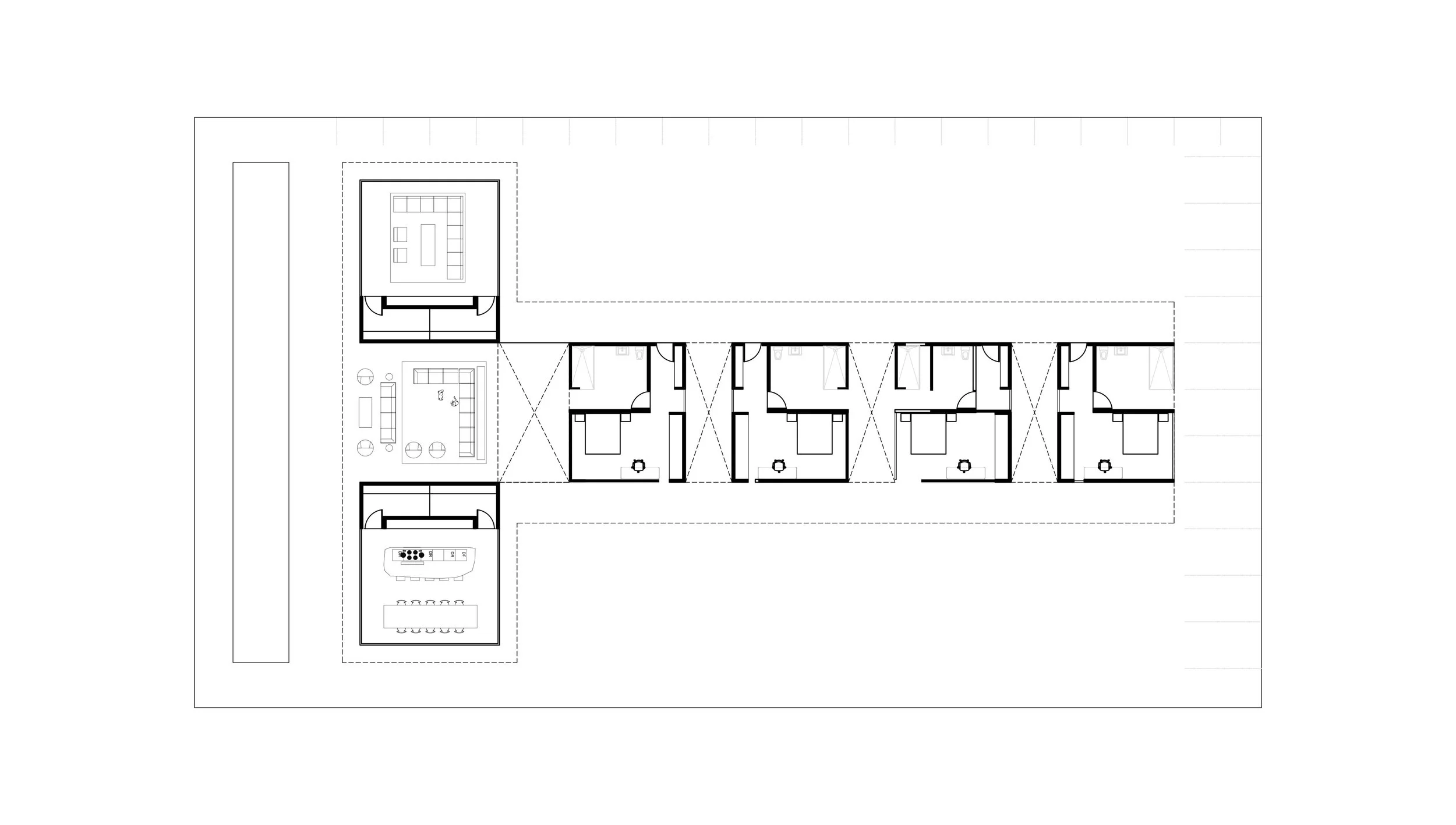
Conceived as a tropical dwelling fully open to its environment, the house unfolds on a single level and organizes the program around patios and gardens, allowing a constant relationship between interior spaces and the natural surroundings. A lap pool and outdoor terraces reinforce the integration between architecture and landscape.

Anterior
Anterior

Hatillo Estates

Siguiente
Siguiente

Casa Manzanillo