CASA VERDE
TYPOLOGY
Single-family residence
PROGRAM
Residence + services + parking
LOCATION
Valle Arriba, Caracas (2018)
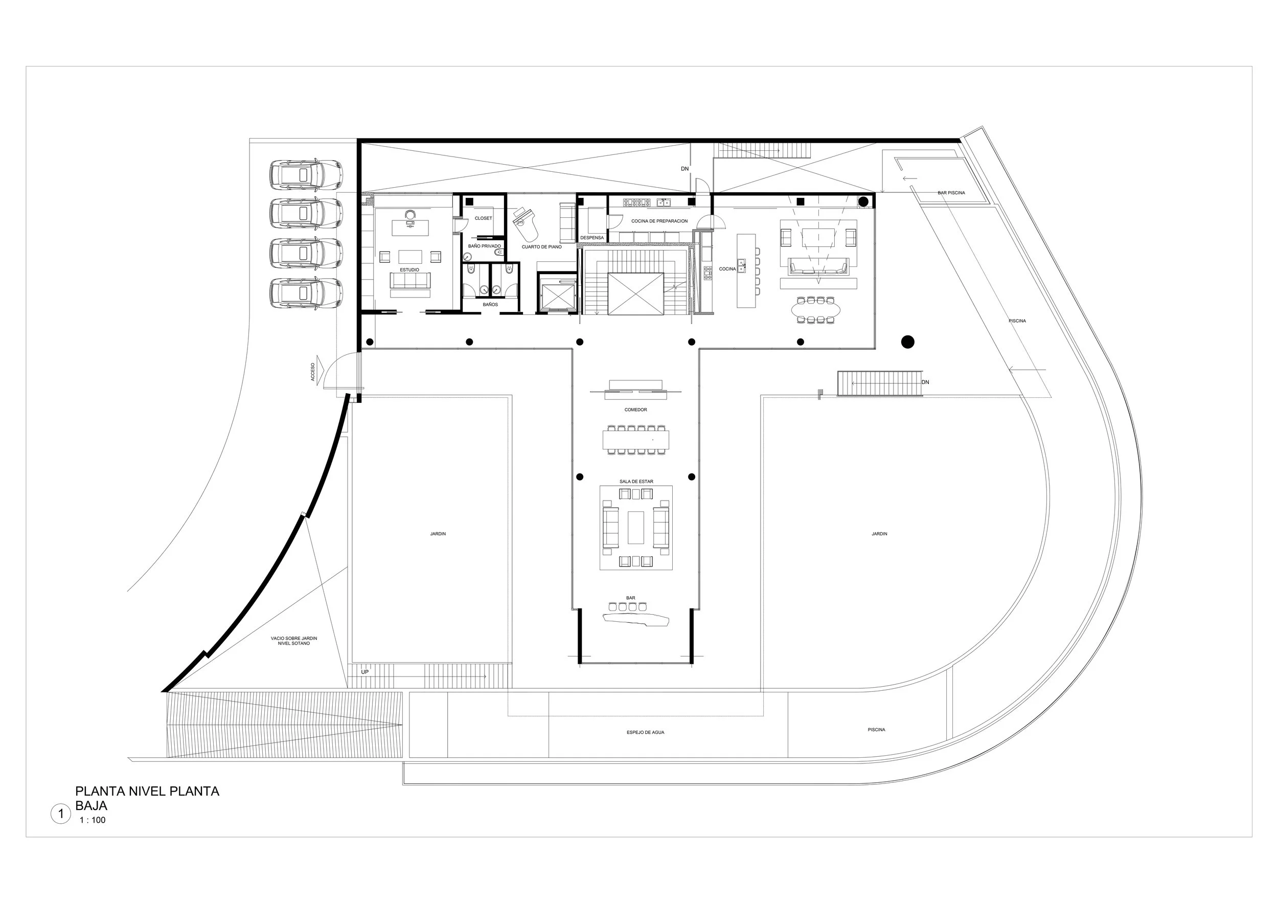
Single-family residence of approximately 4,500 m² developed in collaboration with Oppenheim Architecture. Set on a site with sweeping views over the golf course and the Caracas valley, the project is defined by expansive concrete platforms, horizontal volumes, and generous structural overhangs.
Exterior 01
View from the Valle Arriba Golf Course
Exterior 02
Covered Outdoor Area
Exterior 03
Original Render 01
Original Render 02
General Floor Plan