CASA URAMA

TYPOLOGY
Beach house

PROGRAM
Residence + services + parking

LOCATION
Urama, Vargas State (2016–2017)

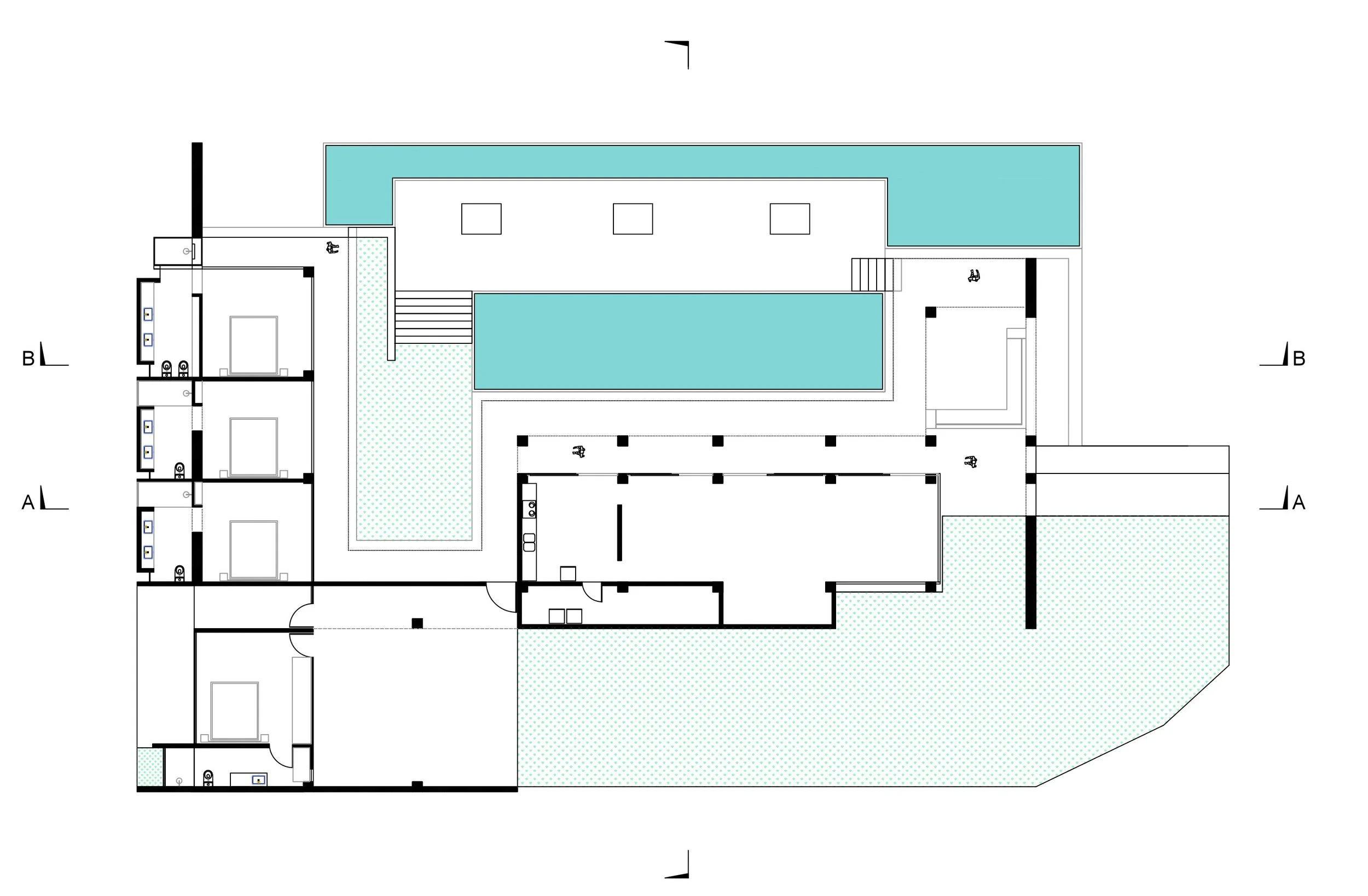
Beach house developed in collaboration with C.H. Rannacher. Set on a wooded site overlooking the Caribbean Sea and within walking distance of a private beach, the house is conceived as a tropical retreat defined by openness, shade, and a strong relationship with the landscape. With 350 m² of enclosed area and 200 m² of outdoor spaces, it unfolds as a sequence of open, interconnected areas that integrate interior and exterior through overhangs, columns, and large glass panels. Raised on a podium, it combines social spaces, private patios, and framed views, with a restrained palette that reinforces its serene, minimalist character.

Pool Area

Terrace Area

Open Living Space

Outdoor Living Area

Rooftop View

Outdoor Living Area

Interior Living Space

Infinity Pool Terrace

Exterior at Night

General Floor Plan

Section 03

Section 02

Section 01

Anterior
Anterior

Miami Shores Residence

Siguiente
Siguiente

Casa Verde