CASA VERDE

TYPOLOGY
Single-family residence

PROGRAM
Residence + services + parking

LOCATION
Valle Arriba, Caracas (2018)

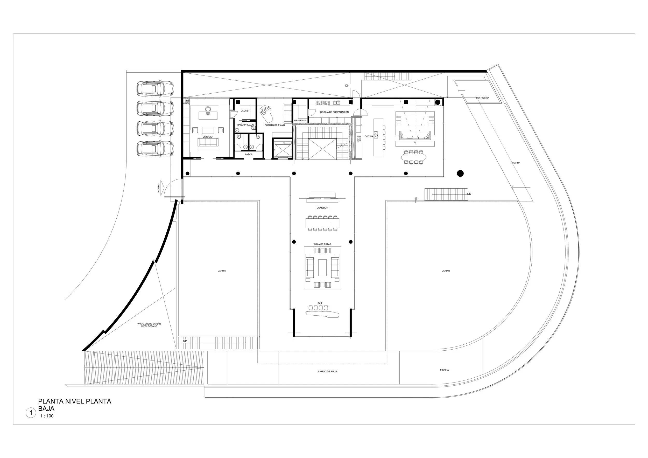
Single-family residence of approximately 4,500 m² developed in collaboration with Oppenheim Architecture. Set on a site with sweeping views over the golf course and the Caracas valley, the project is defined by expansive concrete platforms, horizontal volumes, and generous structural overhangs.

Original Render

Construction Phase

Exterior 01

Covered Outdoor Area

Exterior 02

Structure Under Construction

Exposed Concrete Wall

Concrete Staircase

Circulation Corridor

General Floor Plan

Massing

Anterior
Anterior

Casa Urama

Siguiente
Siguiente

HQ Arsenal Stadium