CASA MANAGUA

TYPOLOGY
Single-family residence

PROGRAM
Residence + services + parking

LOCATION
Managua, Nicaragua (2024)

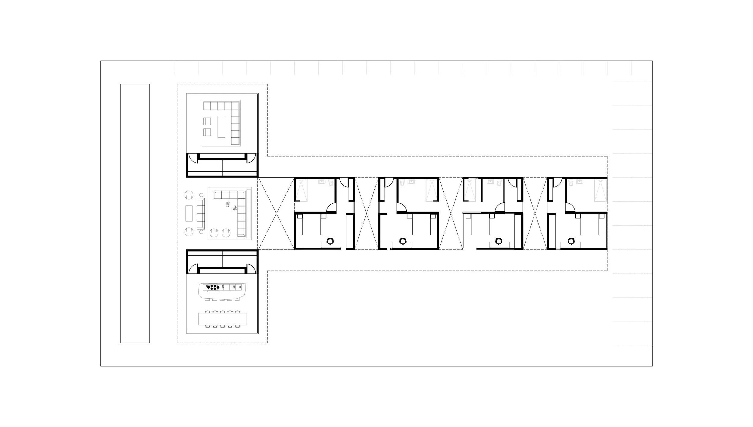
Conceived as a tropical dwelling fully open to its environment, the house unfolds on a single level and organizes the program around patios and gardens, allowing a constant relationship between interior spaces and the natural surroundings. A lap pool and outdoor terraces reinforce the integration between architecture and landscape.

Pool Area

Entrance

Exterior 01

Exterior 02

Terrace

Platforms, shade, and spatial sequence

Platforms, shade, and spatial sequence

General Floor Plan

Massing

Anterior
Anterior

Hatillo Estates

Siguiente
Siguiente

Casa Manzanillo