HATILLO ESTATES

TYPOLOGY
Single-family residence

PROGRAM
Residence + services + parking

LOCATION
Alto Hatillo, Caracas (2026)

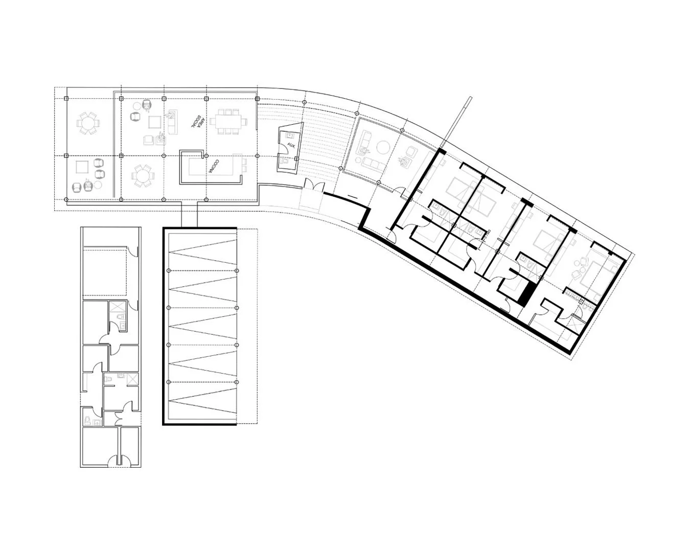
A single-level residence set within a sloping site overlooking the Caracas valley. Organized through a longitudinal plan, the house unfolds as a sequence of patios, gardens, and terraces that mediate between domestic life and the surrounding landscape. Large openings and continuous social spaces blur the limits between inside and outside.

Anterior
Anterior

Hatillo Estates 02 Carousel