CASA URAMA
TYPOLOGY
Beach house
PROGRAM
Residence + services + parking
LOCATION
Urama, Vargas State (2016–2017)
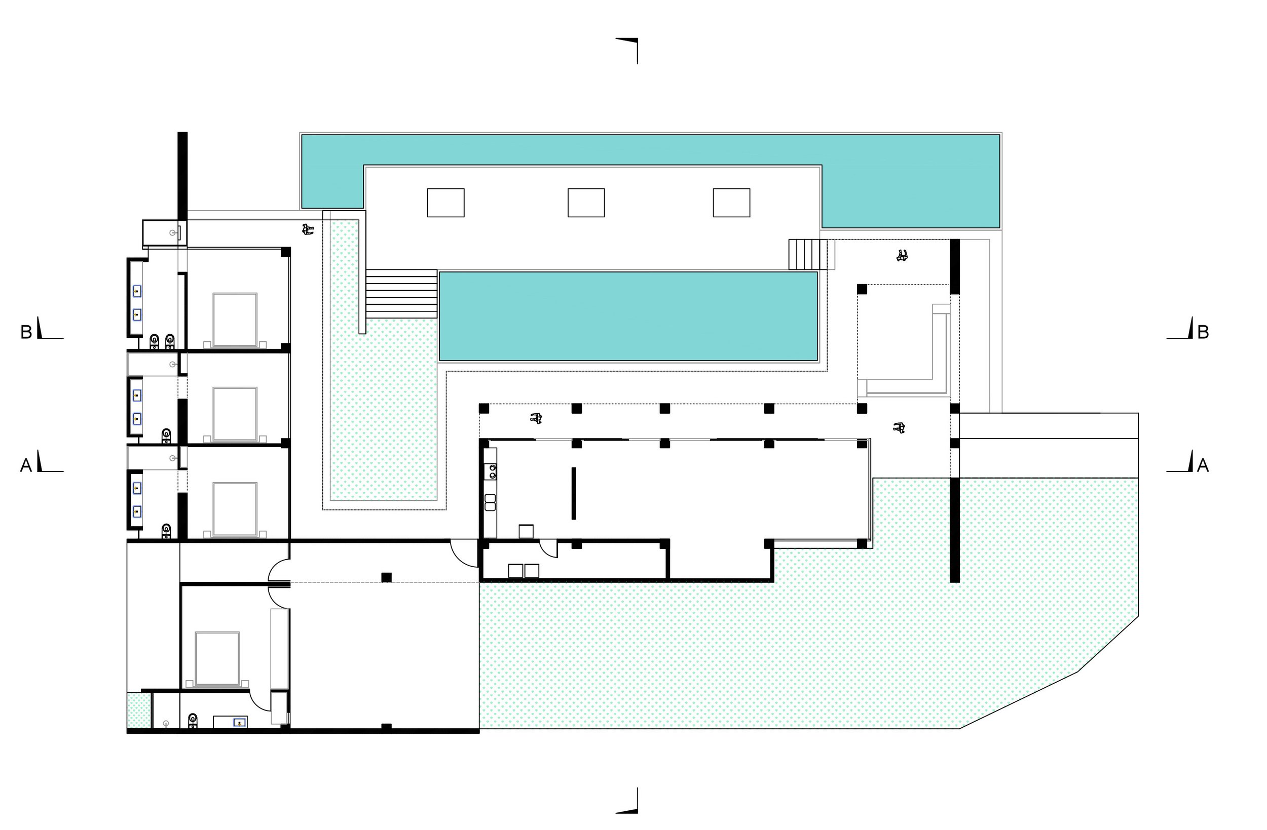
Beach house developed in collaboration with C.H. Rannacher. Set on a wooded site overlooking the Caribbean Sea and within walking distance of a private beach, the house is conceived as a tropical retreat defined by openness, shade, and a strong relationship with the landscape. With 350 m² of enclosed area and 200 m² of outdoor spaces, it unfolds as a sequence of open, interconnected areas that integrate interior and exterior through overhangs, columns, and large glass panels. Raised on a podium, it combines social spaces, private patios, and framed views, with a restrained palette that reinforces its serene, minimalist character.
Exterior 01
Construcción
Exterior 02
Pool and Terrace
Terrace
Interior 01
Interior 02
Lap Pool
Exterior 03
General Floor Plan
Section 01
Section 02
Section 03