VILLA SERENA

TYPOLOGY
Beach house

PROGRAM
Residence + services + parking

LOCATION
La Sabana, Vargas State (2024–2025)

A renovation that transforms an existing structure into a Caribbean tropical retreat. The project reconfigures the house as a sequence of open, interconnected spaces, integrating terraces, galleries, and outdoor social areas through pitched roofs and permeable enclosures.

Exterior 01

Exterior 02

Exterior 03

Exterior 04

Exterior 05

Ground Floor Plan

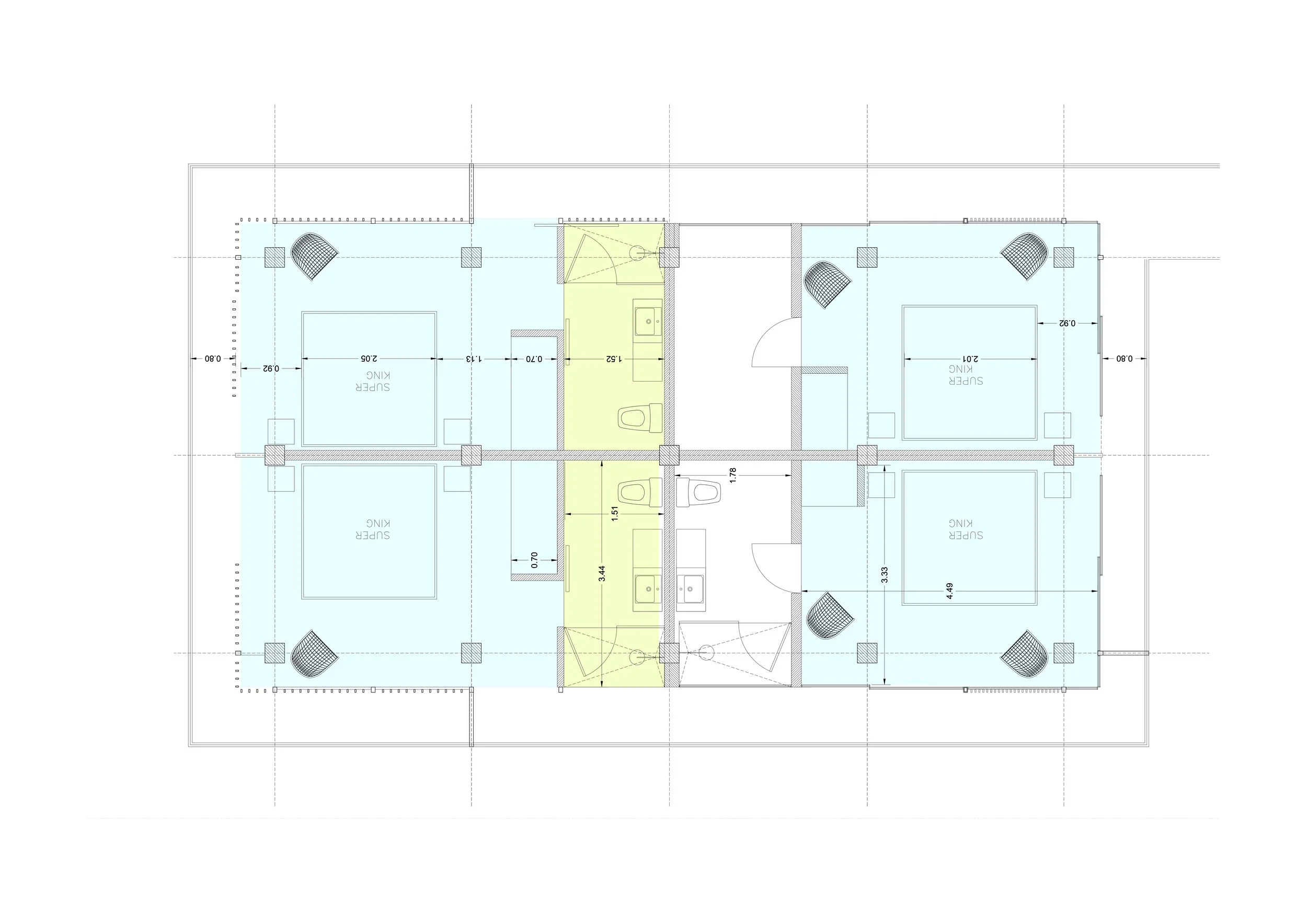
Upper Floor Plan

Elevation

Anterior
Anterior

Casa Manzanillo

Siguiente
Siguiente

Casa La Sabana